
产品展示
Product display连云港恒江石化机械设备有限公司
电话:0518-86296267
手机:13675228671
联系人:王经理
地址:江苏连云港赣榆区城西镇工业园区
邮箱:lyghjsh@163.com
网址:http://www.hjshjx.com/

浮动出液装置主要由连接法兰、旋转接头、主支撑、辅助支撑、浮筒、管件、整流栅、静导线等部件组成。
浮动出液装置可做罐下采样器主支撑用。
调油器装置:
为了节约能源、提高效率、保护环境,要求油品质量更高,品种更多。
油品调和是成品油生产的一项重要工艺。
我公司结合浮动出油臂的特点,研制,开发出一种油品调和新产品。
一种新型的浮动式油品调和装置,油品调和装置可以随储罐内油面同步上升或下降。它可使油品在罐内从上而下分散流动,起到对油品的调和作用,最终使不同成分的油品得到充分均匀混合。
结构特点:
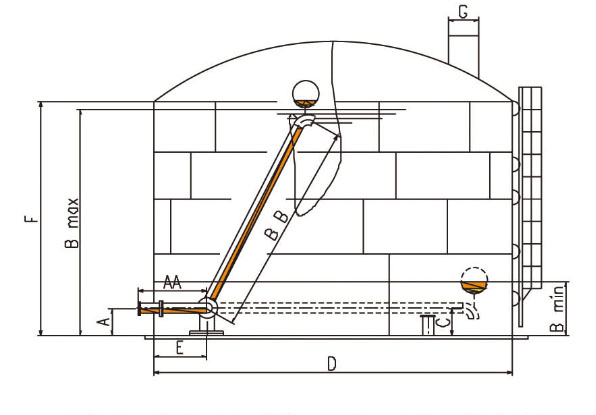
浮动式油品调和装置的结构如图1所示,主要由人口端、下进油管、上进油管、支腿、旋转接头、“十”字分流器、浮筒、出口端、连接件或导向机构组成,装置一端为入口端,另一端为“十”字分流器,入口端通过法兰与储罐底部接管连接。
该装置各组件的作用如下:
(1) 入口端,由弯头及法兰组成,与底部进油管法兰连接。
(2)上下进油管,用于油品输送,对于尺寸较大的进油管,可考虑分多段制作,便于运输安装时多段之间用法兰连接即可。
(3)支腿,当储罐内无油品,装置处于静止状态时,用于固定和支撑装置重量,保证内浮顶不受拉力。
(4)旋转接头,主要有、内圈、外圈、主密封、连接法兰、钢球组成。每台装置包含3只旋转接头,用于将装置各部件进行连接,并随罐内油面上下浮动、转动。主密封采用具有自动补偿性的增强聚四氟材料,具有灵活,密封良好等特点。
(5)“十”字分流器,主要由无缝管组焊而成,其下部均匀分布多个出油口,起油品调和作用且使出油口保持在液面以下。
(6)浮筒,为全封闭的空心长型圆通,重量轻,避免“十”字分流器碰到罐壁。
